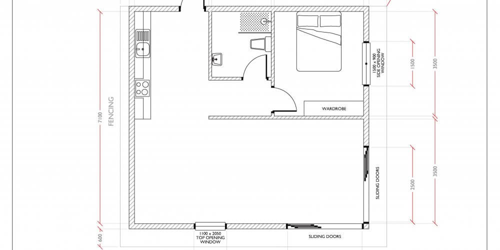
The Crummock Timber Extension is the perfect way to add extra living space to your home either for a Granny Annex or for additional room. This extensions is customisable for all requirements. This construction offers an extension with naturally bright, living space, with a consolidated bedroom/on-suite bathroom.
Manufactured to current building regulations, our building extensions are available as turnkey projects, of course, with your input in every aspect of the final design. Our extensions accommodation is available in many combinations. Just speak to our sales team to get started on your dream annex today.
- Options for Sloped or Flat profile roofing system with excess of 30 years life expectancy
- UPVC sliding doors anthracite grey door
- UPVC window, anthracite grey
- Available Kitchen areas (P.O.A)
- Standard bathroom to include, toilet, sink and shower
- Open plan living space incorporating the kitchen area
- Alternative external finishes available, Cedar Cladding, Zero Maintenance Cladding, Rendered Finish, Silicone K Render or Brick.
- Plasterboard and skim finish internally to walls and ceilings
- Commercial grade laminate flooring internally
- All electrical components i.e. lighting, switch, heating
- SIP panel Installation & foundation system applicable to site
Price on Request
Bespoke Design Available
Prices are dependent on Site Survey & Location
Stylish design
Options for Sloped or Flat profile roofing system.
Alternative external finishes available.
Comes complete with aliminimum bi-fold doors and windows
Read Garden Room Specifications
Outdoor Buildings Planning Guide

10 Year Guarantee
We ensure your building is built to to the highest standard of workmanship using premium quality materials and supplies, and for your own piece of mind for the long term, all our buildings are available with 10 year insurance backed guarantee.















