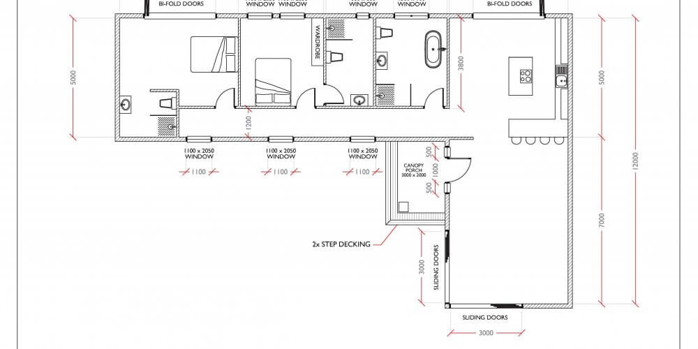
The Esthwaite Luxury Granny Annex offers plenty of fantastic luxury living space for an elderly relative. This granny annex is customisable for all requirements. This luxury annex provides two on-suite bedrooms an additional bathroom and open plan living room, kitchen diner. This construction offers a naturally bright, living space, with a consolidated bedroom/on-suite bathroom.
Manufactured to current building regulations, our annex buildings are available as turnkey projects, of course, with your input in every aspect of the final design. Our annex accommodation is available in many combinations. Just speak to our sales team to get started on your dream luxury annex today.
- Box profile roofing system in excess of 30 years life expectancy
- UPVC sliding doors anthracite grey door
- Full glazed UPVC pedestrian door
- Top opening UPVC windows, anthracite grey
- Available Kitchen areas (P.O.A)
- Standard en-suite bathrooms to include, toilet, sink and quad shower
- Main Standard bathroom to include, toilet, sink and bath
- Open plan living space incorporating the kitchen & dining area
- Two Bedrooms with linking on suite (optional)
- Alternative external finishes available, Cedar Cladding, Zero Maintenance Cladding, Rendered Finish, Silicone K Render.
- Plasterboard and skim finish internally to walls and ceilings
- Commercial grade laminate flooring internally
- All electrical components i.e. lighting, switch, heating
- SIP panel Installation & foundation system applicable to site
Price on Request
Bespoke Design Available
Prices are dependent on Site Survey & Location
Large Luxury design
Enhanced with lots of Natural light
Options for cladding or render
Comes complete with aliminimum bi-fold doors and windows
Read Garden Room Specifications
Outdoor Buildings Planning Guide

10 Year Guarantee
We ensure your building is built to to the highest standard of workmanship using premium quality materials and supplies, and for your own piece of mind for the long term, all our buildings are available with 10 year insurance backed guarantee.








