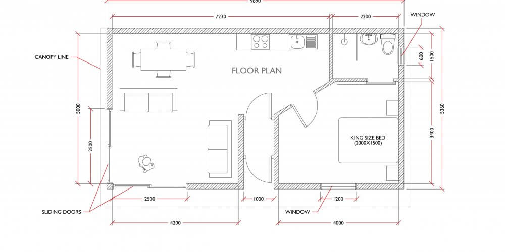
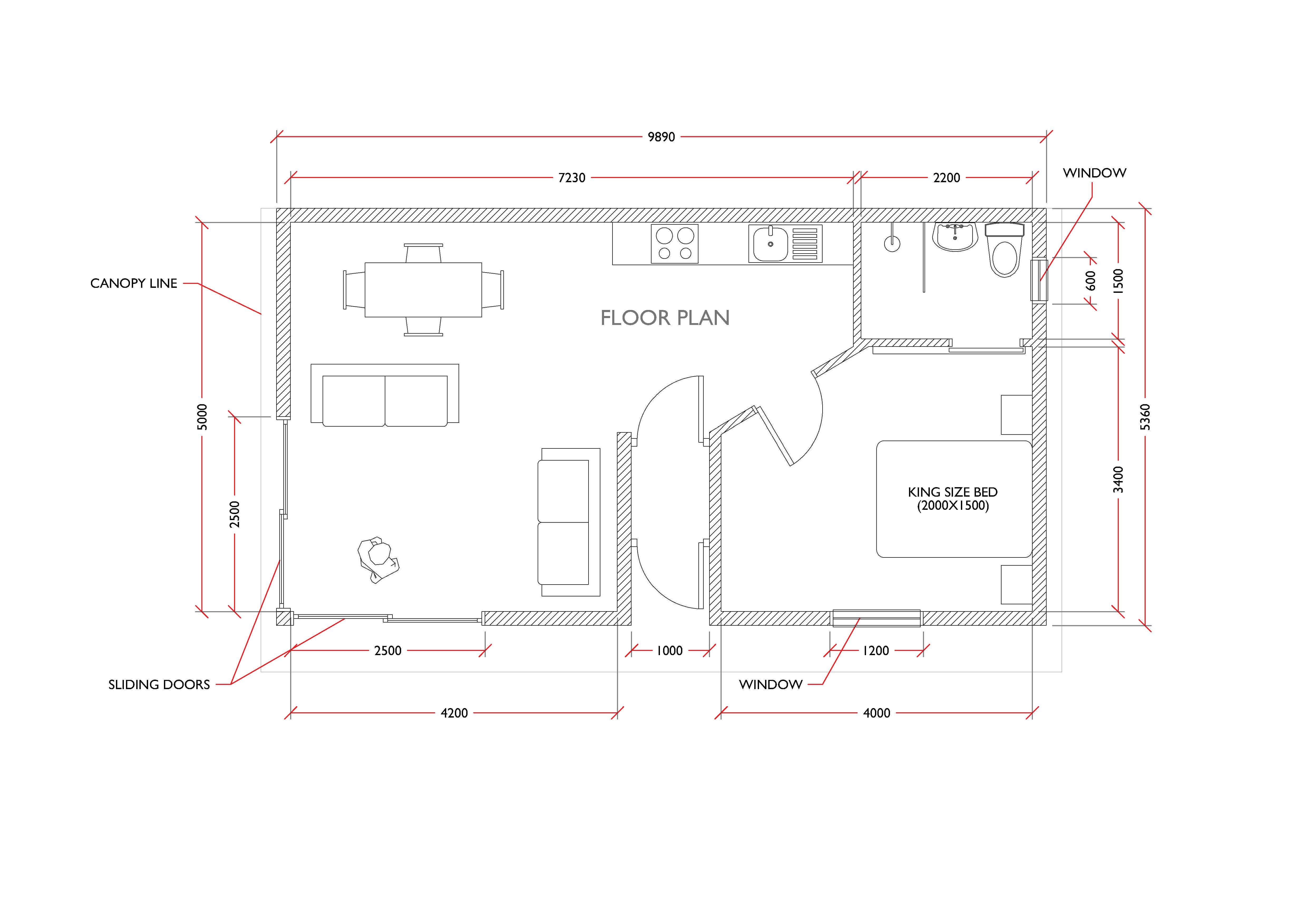
The Grasmere Granny Annex offers plenty of natural light from 2 angles. Creating a open feel for the summer months or an enclosed garden room feel for those cold and dull winter months, this granny annex is customisable for all requirements. Our Granny annex or teenage accommodation is an ideal layout for a two-person, living accommodation. This construction offers a naturally bright, living space, with a consolidated bedroom/on-suite bathroom.
Manufactured to current building regulations, our annex buildings are available as turnkey projects, of course, with your input in every aspect of the final design. Our annex accommodation is available in many combinations. Just speak to our sales team to get started on your dream annex today.
Box profile roofing system in excess of 30 years life expectancy
2 x 2.5m x 2050mm UPVC sliding doors anthracite grey door
1 x 950mm x 2050mm Full glazed UPVC pedestrian door, anthracite grey
1 x 1.2m x 800mm Top opening UPVC window, anthracite grey
1 x 600mm x 600mm Top opening UPVC window, anthracite grey
Available Kitchen areas (P.O.A)
Standard bathroom to include, toilet, sink and quad shower
Open plan living space incorporating the kitchen area
Bedroom with linking on suite (optional)
Western Red Cedar Cladding to elevations
Plasterboard and skim finish internally to walls and ceilings
Commercial grade laminate flooring internally
All electrical components i.e. lighting, switch, heating
SIP panel Installation & foundation system applicable to site
P.O.A.
Bespoke Design Available
Prices are dependent on Site Survey & Location
Compact stylish design
Natural light enhancing design
Option of Cedar or Trespa panelling cladding
Comes complete with aliminimum bi-fold doors and windows
Read Garden Room Specifications
Outdoor Buildings Planning Guide

10 Year Guarantee
We ensure your building is built to to the highest standard of workmanship using premium quality materials and supplies, and for your own piece of mind for the long term, all our buildings are available with 10 year insurance backed guarantee.















