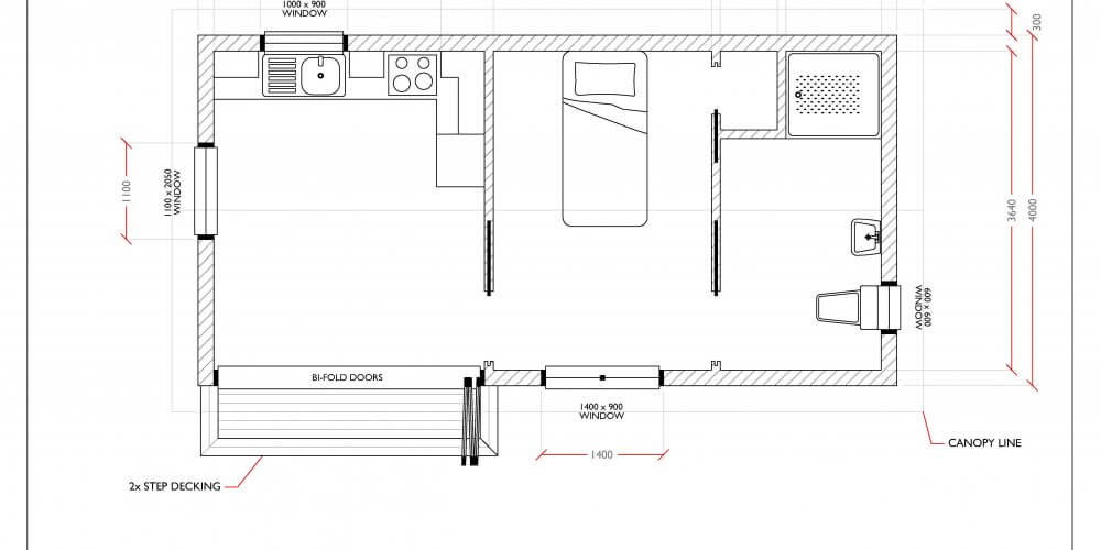
The Haweswater Granny Annex offers plenty of living space for an elderly relative. This granny annex is customisable for all requirements. It is an ideal layout for a one-person, living accommodation. This construction offers a naturally bright, living space, with a consolidated bedroom/on-suite bathroom.
Manufactured to current building regulations, our annex buildings are available as turnkey projects, of course, with your input in every aspect of the final design. Our annex accommodation is available in many combinations. Just speak to our sales team to get started on your dream annex today.
- Options for Apex or Flat profile roofing system with excess of 30 years life expectancy
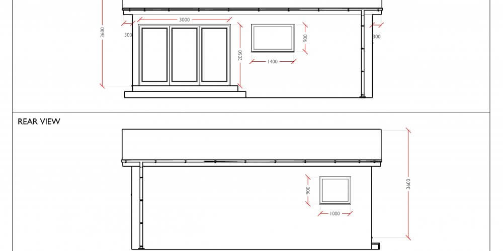
- UPVC sliding doors anthracite grey door
- Top opening UPVC windows, anthracite grey
- Available Kitchen areas (P.O.A)
- Standard bathroom to include, toilet, sink and quad shower
- Open plan living space incorporating the kitchen area
- Bedroom with linking Bathroom
- Alternative external finishes available, Cedar Cladding, Zero Maintenance Cladding, Rendered Finish, Silicone K Render.
- Plasterboard and skim finish internally to walls and ceilings
- Commercial grade laminate flooring internally
- All electrical components i.e. lighting, switch, heating
- SIP panel Installation & foundation system applicable to site
Price on Request
Bespoke Design Available
Prices are dependent on Site Survey & Location
Small Simple Functional design
Options for Apex or Flat profile roofing system.
Alternative external finishes available.
Comes complete with aliminimum bi-fold doors and windows
Read Garden Room Specifications
Outdoor Buildings Planning Guide

10 Year Guarantee
We ensure your building is built to to the highest standard of workmanship using premium quality materials and supplies, and for your own piece of mind for the long term, all our buildings are available with 10 year insurance backed guarantee.













