Costs
Other sizes POA
Bespoke Design Available
Prices are dependent on Site Survey & Location
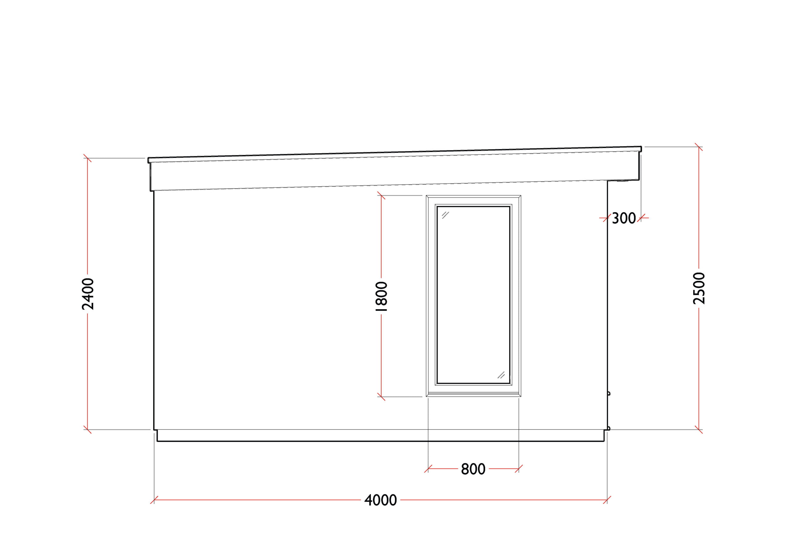
Contemporary Design
Manufactured with SIP Panels
Clad with attractive and durable premium Western Cedar Timber
Read Garden Room Specifications
Outdoor Buildings Planning Guide

10 Year Guarantee
We ensure your building is built to to the highest standard of workmanship using premium quality materials and supplies, and for your own piece of mind for the long term, all our buildings are available with 10 year insurance backed guarantee.










