Rudyard Garden Room

Contact Us for a Price

 


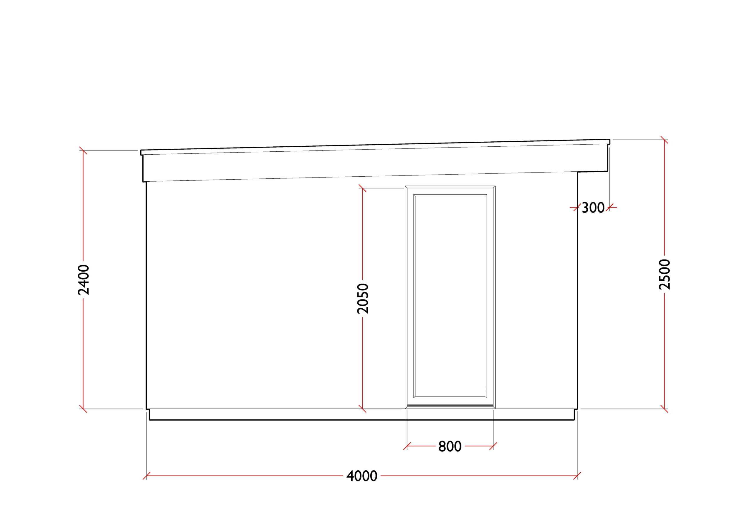
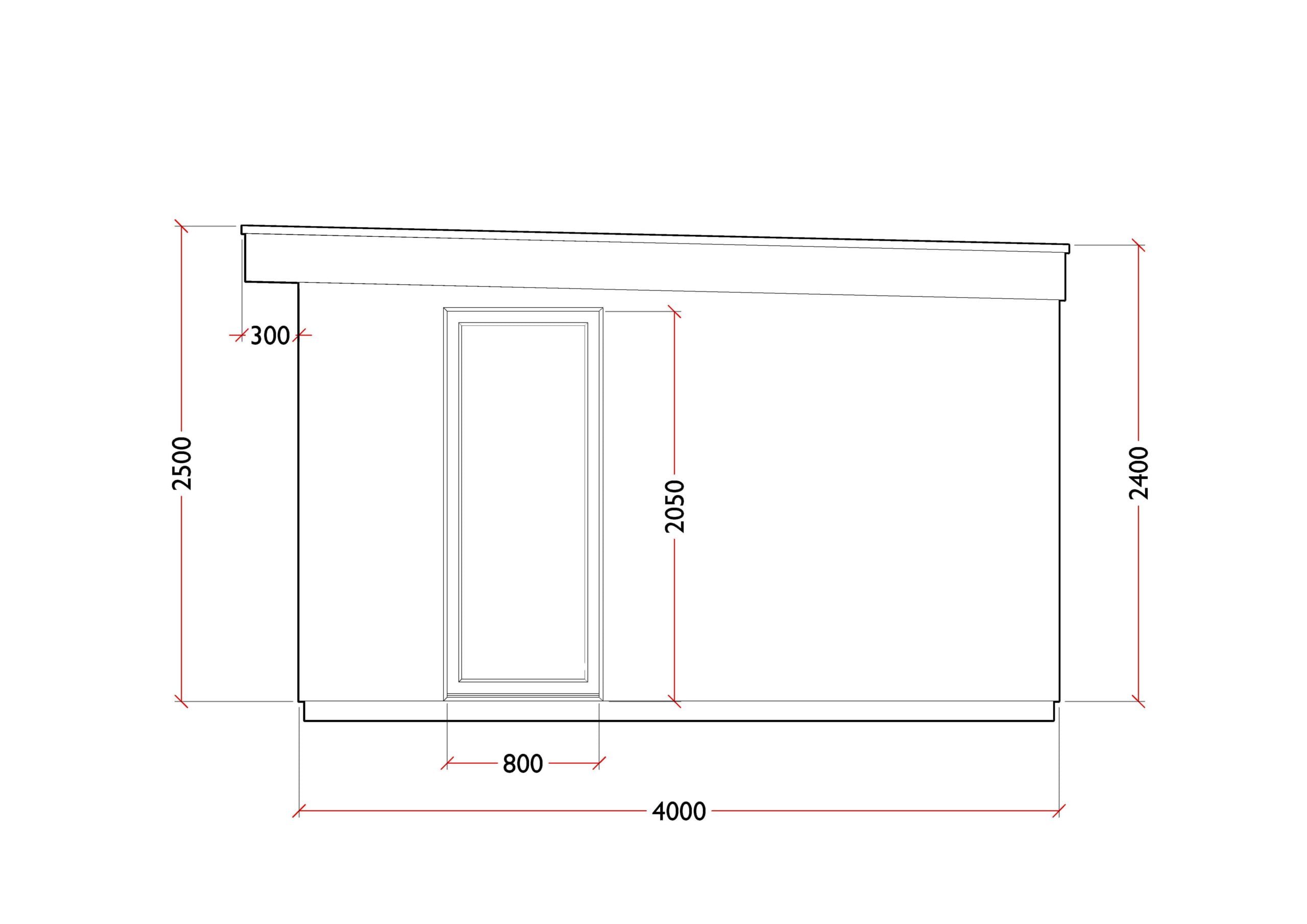
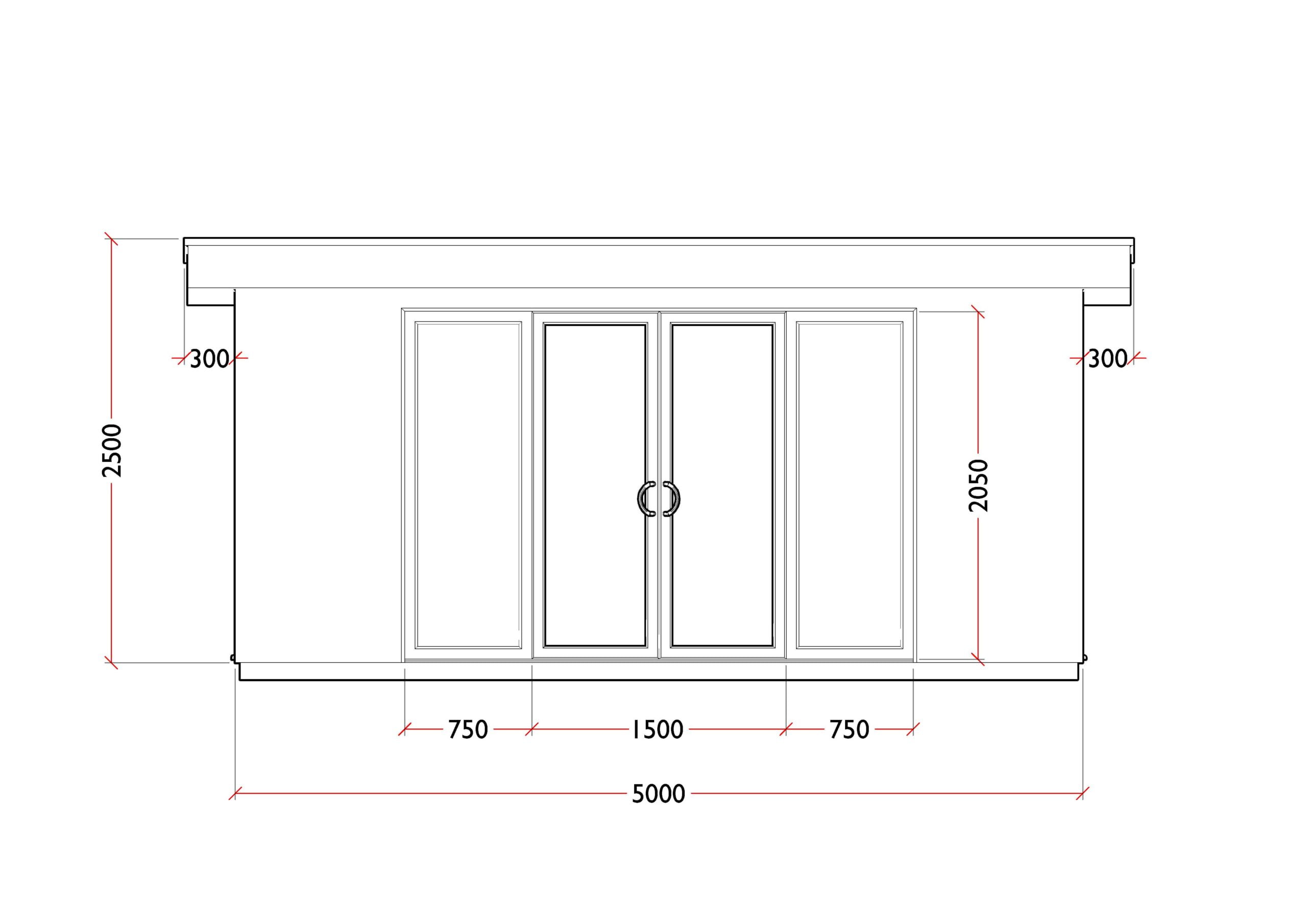
The Rudyard Garden Room is a bold statement in contemporary design that will compliment any garden. The elegantly modern design and aluminium, bifold doors Rudyard offers luxurious garden room living.

  • Box profile roofing system in excess of 30 years life expectancy
  • Anthracite Grey aluminium panel to fascia.
  • Aluminium 4 Section Sliding Doors (2 pane sliders)
  • Western Red Cedar Cladding to elevations
  • Plasterboard and skim finish internally to walls and ceilings
  • Commercial grade laminate flooring internally
  • All electrical components i.e. lighting, switch, heating
  • SIP Panel Installation with foundation system applicable to site


Rudyard Garden Room

Costs

Contact Us for a Price
Bespoke Design Available

Prices are dependent on Site Survey & Location



Bold Statement – Peak Luxury

Contemporary Design

Manufactured with SIP Panels

Clad with attractive and durable premium Western Cedar Timber


Read Garden Room Specifications
Outdoor Buildings Planning Guide

10 Year Guarantee

We ensure your building is built to to the highest standard of workmanship using premium quality materials and supplies, and for your own piece of mind for the long term, all our buildings are available with 10 year insurance backed guarantee.

View Warranty & Aftercare

Music Room Add on Feature

All of our buildings sare easily adapted to suit both options of sound proofing